2026年04月20日時点
成約済み
| 価格 | ---万円 | ||
| 住所・最寄り駅 | 川越市大字藤間 東武東上線 上福岡駅 徒歩21分 |
||
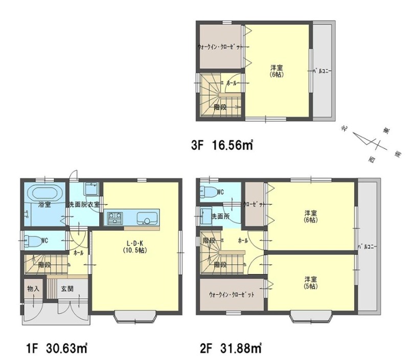
| 間取り/間取り詳細 | 3SLDK LDK10.5帖 / 洋室6帖 / 洋室6帖 / 洋室5帖 | 築年月 | 2005年9月 |
| 建物面積/土地面積 | 79.07㎡/57.33㎡ | 階数 | 地上3階 |
平坦地
南道路
トイレ2か所
駐車場あり
対面キッチン
バス・トイレ別
独立洗面台
バルコニー
ウォークインクローゼット
クローゼットシューズボックス
| 住所 | 川越市大字藤間 | ||
| 交通機関 | 東武東上線 上福岡駅 徒歩21分 | ||
| 間取り/間取り詳細 | 3SLDK / LDK10.5帖 / 洋室6帖 / 洋室6帖 / 洋室5帖 | ||
| 建物面積 | 79.07㎡ | 土地面積 | 57.33㎡ |
| 計測方法 | 実測 | ||
| 主要採光面 | 建物構造 | 木造 | |
| 都市計画 | 市街化区域 | ||
| 階数 | 地上3階 | 築年月 | 2005年9月 |
| 築年月備考 | |||
| 設備・条件 | 平坦地/南道路/トイレ2か所/駐車場あり/対面キッチン/バス・トイレ別/独立洗面台/バルコニー/ウォークインクローゼット/クローゼットシューズボックス/ | ||
| 水道 | 公営水道・公共下 | ガス | 個別プロパンガス |
| 土地権利 | 所有権のみ | セットバック | |
| 接道状況 | 二方(角地) | ||
| 接道1 | 南西側 私道 幅員4.0m | ||
| 地目 | 宅地 | 用途地域 | 第一種住居地域 |
| 建ぺい率 | 70% | 容積率 | 160% |
| 引渡 | 相談 | 地勢 | 平坦 |
| 現況 | 居住中 | 国土法届出 | |
| 取引形態 | 専任 | 物件管理コード | 2025112001 |
| 備考・特記事項 | 図面と現況に相違がある場合、現況優先とします。 | ||
| 問い合わせ先 | 東上住宅 株式会社 | 電話番号 | 049-250-5555 |
| 建築確認番号 | |||
会員登録のメリット
①データ連携機能搭載
いつでも、どこでもPCやスマホ、タブレットなどで同じ状況で閲覧いただけます。
②物件比較機能
チェックした物件を様々な条件を並べて比較できますので絞り込みに便利です。

または
いつでも、どこでもPCやスマホ、タブレットなどで同じ状況で閲覧いただけます。
チェックした物件を様々な条件を並べて比較できますので絞り込みに便利です。
画面左下の会員登録ボタンからご登録下さい。