一覧に戻る

朝霞市田島4期1号棟 新築戸建 成約済み

 2026年04月11日時点

成約済み

外観イメージパース

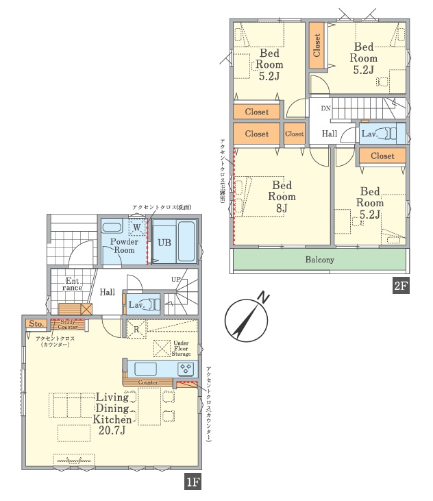
間取り図

区画図

価格 ---万円
住所・最寄り駅 朝霞市田島2丁目
東武東上線 朝霞駅 バス11分
間取り/間取り詳細 4LDK  LDK20.7帖 / 洋室8帖 / 洋室5.2帖 / 洋室5.2帖 / 洋室5.2帖 築年月 2026年1月
建物面積/土地面積 103.5㎡/100㎡ 階数 地上2階

朝霞市田島4期1号棟 新築戸建 成約済みのPRポイント


設備・条件

  • 南道路

  • トイレ2か所

  • 駐車場あり

  • 24時間換気システム

  • TVモニタ付インターホン

  • リビングダイニング15畳以上

  • 対面キッチン

  • システムキッチン

  • 食器洗い乾燥機

  • 浴室乾燥機あり

  • バス・トイレ別

  • 洗濯機置き場

  • 独立洗面台

  • シャワートイレ

  • シャンプードレッサー

  • バルコニー

  • 床下収納

  • フローリング

  • フラット35利用可

朝霞市田島4期1号棟 新築戸建 成約済みの物件概要

住所 朝霞市田島2丁目
交通機関 東武東上線 朝霞駅 バス11分
間取り/間取り詳細 4LDK / LDK20.7帖 / 洋室8帖 / 洋室5.2帖 / 洋室5.2帖 / 洋室5.2帖
建物面積 103.5㎡ 土地面積 100㎡
計測方法 登記
主要採光面 建物構造 木造
都市計画 市街化区域
階数 地上2階 築年月 2026年1月
築年月備考
設備・条件 南道路/トイレ2か所/駐車場あり/24時間換気システム/TVモニタ付インターホン/リビングダイニング15畳以上/対面キッチン/システムキッチン/食器洗い乾燥機/浴室乾燥機あり/バス・トイレ別/洗濯機置き場/独立洗面台/シャワートイレ/シャンプードレッサー/バルコニー/床下収納/フローリング/フラット35利用可/
水道 公営水道・本下水 ガス 都市ガス
土地権利 所有権のみ セットバック
接道状況 二方(角地)
接道1 北西側 公道 幅員5.9m
地目 宅地 用途地域 第一種中高層住居専用地域
建ぺい率 70% 容積率 150%
引渡 相談 地勢
現況 空家 国土法届出 不要
取引形態 仲介 物件管理コード 2026011201
備考・特記事項 法第22条区域。下水処理区域。宅地造成等工事規制区域。日影規制3h-2h 4m。
図面と現況に相違がある場合、現況優先とします。駐車場/台数は車種による制限有。
私道負担159㎡1/12。ゴミ集積持分2.54㎡×1/8。
問い合わせ先 東上住宅 株式会社 電話番号 049-250-5555
建築確認番号 第25UDI1W建05742号