2026年03月28日時点
成約済み
| 価格 | ---万円 | ||
| 住所・最寄り駅 | 和光市白子2丁目 東武東上線 地下鉄成増駅 徒歩12分 東武東上線 成増駅 徒歩12分 |
||
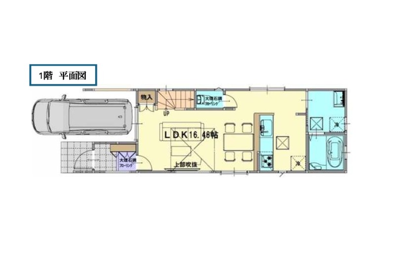
| 間取り/間取り詳細 | 3LDK LDK16.46帖 / 洋室7.91帖 / 洋室5.28帖 / 洋室5.25帖 / その他6.5帖 | 築年月 | 2026年6月 |
| 建物面積/土地面積 | 87.15㎡/79.04㎡ | 階数 | 地上3階 |
平坦地
外断熱
南道路
トイレ2か所
駐車場あり
照明器具付き
吹き抜け
間取り変更可能
リビングダイニング15畳以上
リビングに階段あり
コンロ3口以上
浴室乾燥機あり
バス・トイレ別
洗濯機置き場
独立洗面台
バルコニー
床下収納
デザイナーズ住宅
フローリング
フラット35利用可
| 住所 | 和光市白子2丁目 | ||
| 交通機関 | 東武東上線 地下鉄成増駅 徒歩12分 東武東上線 成増駅 徒歩12分 |
||
| 間取り/間取り詳細 | 3LDK / LDK16.46帖 / 洋室7.91帖 / 洋室5.28帖 / 洋室5.25帖 / その他6.5帖 | ||
| 建物面積 | 87.15㎡ | 土地面積 | 79.04㎡ |
| 計測方法 | 実測 | ||
| 主要採光面 | 建物構造 | 木造 | |
| 都市計画 | 市街化区域 | ||
| 階数 | 地上3階 | 築年月 | 2026年6月 |
| 築年月備考 | |||
| 設備・条件 | 平坦地/外断熱/南道路/トイレ2か所/駐車場あり/照明器具付き/吹き抜け/間取り変更可能/リビングダイニング15畳以上/リビングに階段あり/コンロ3口以上/浴室乾燥機あり/バス・トイレ別/洗濯機置き場/独立洗面台/バルコニー/床下収納/デザイナーズ住宅/フローリング/フラット35利用可/ | ||
| 水道 | 公営水道、公営下水道 | ガス | 都市ガス |
| 土地権利 | 所有権のみ | セットバック | 済 |
| 接道状況 | 一方 | ||
| 接道1 | 南西側 私道 幅員3.0m | ||
| 地目 | 宅地 | 用途地域 | 第一種住居地域 |
| 建ぺい率 | 60% | 容積率 | 200% |
| 引渡 | 相談 | 地勢 | 平坦 |
| 現況 | 未完成 | 国土法届出 | 不要 |
| 取引形態 | 仲介 | 物件管理コード | 2026021605 |
| 備考・特記事項 | 間取りプラン(省エネ適合判定)によってはご要望に添えられない場合がございます。図面と相違がある場合は現況を優先させて頂きます。画像にはオプション工事項目が含まれております。SB部分約4.86㎡。私道持分約75.68㎡(持分568/7568)。第二高度地区。あんしん住宅瑕疵保険による建物10年保証。地盤保証(株)地盤ネットによる地盤20年保証。司法書士は売主指定です。価格UP無しで建築条件無しの土地としても購入可能。お好きなハウスメーカーにて建築可能。フリープランの場合は土地を先行してお引渡しさせて頂きます。フラット35利用時には適合証明書発行費用165,000円(税込)が別途。 | ||
| 問い合わせ先 | 東上住宅 株式会社 | 電話番号 | 049-250-5555 |
| 建築確認番号 | |||
会員登録のメリット
①データ連携機能搭載
いつでも、どこでもPCやスマホ、タブレットなどで同じ状況で閲覧いただけます。
②物件比較機能
チェックした物件を様々な条件を並べて比較できますので絞り込みに便利です。

または
いつでも、どこでもPCやスマホ、タブレットなどで同じ状況で閲覧いただけます。
チェックした物件を様々な条件を並べて比較できますので絞り込みに便利です。
画面左下の会員登録ボタンからご登録下さい。