2026年02月22日時点
販売中
| 価格 | 2,970万円 | ||
| 住所・最寄り駅 | 富士見市水谷東2丁目 東武東上線 志木駅 バス14分 |
||
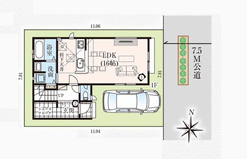
| 間取り/間取り詳細 | 3LDK LDK16帖 / 洋室7.5帖 / 洋室5.25帖 / 洋室5.25帖 | 築年月 | 2025年12月 |
| 建物面積/土地面積 | 87.36㎡/86.34㎡ | 階数 | 地上2階 |
耐震構造
長期優良住宅
前道6m以上
トイレ2か所
駐車場あり
リビングダイニング15畳以上
システムキッチン
コンロ3口以上
浴室乾燥機あり
バス・トイレ別
洗濯機置き場
独立洗面台
シャワートイレ
2面以上バルコニー
ウォークインクローゼット
床下収納
シューズインクローゼット
フラット35利用可
| 住所 | 富士見市水谷東2丁目 | ||
| 交通機関 | 東武東上線 志木駅 バス14分 バス停 富士見クリニックから徒歩4分 | ||
| 間取り/間取り詳細 | 3LDK / LDK16帖 / 洋室7.5帖 / 洋室5.25帖 / 洋室5.25帖 | ||
| 建物面積 | 87.36㎡ | 土地面積 | 86.34㎡ |
| 計測方法 | 登記 | ||
| 主要採光面 | 建物構造 | 木造 | |
| 都市計画 | 市街化区域 | ||
| 階数 | 地上2階 | 築年月 | 2025年12月 |
| 築年月備考 | |||
| 設備・条件 | 耐震構造/長期優良住宅/前道6m以上/トイレ2か所/駐車場あり/リビングダイニング15畳以上/システムキッチン/コンロ3口以上/浴室乾燥機あり/バス・トイレ別/洗濯機置き場/独立洗面台/シャワートイレ/2面以上バルコニー/ウォークインクローゼット/床下収納/シューズインクローゼット/フラット35利用可/ | ||
| 水道 | 公営水道、本下水 | ガス | 都市ガス |
| 土地権利 | 所有権のみ | セットバック | |
| 接道状況 | 一方 | ||
| 接道1 | 東側 公道 幅員7.5m | ||
| 地目 | 宅地 | 用途地域 | 第一種住居地域 |
| 建ぺい率 | 60% | 容積率 | 200% |
| 引渡 | 相談 | 地勢 | |
| 現況 | 空家 | 国土法届出 | 不要 |
| 取引形態 | 仲介 | 物件管理コード | 2026022104 |
| 備考・特記事項 | 電波障害等によるケーブルTV、共聴アンテナの申込はお客様の負担となります。電気供給の為、敷地内に電柱及び支線が入る場合があります。所有権移転登記手続きにおいて売主指定の司法書士を利用していただきます。図面と現況に相違がある場合は現況を優先とします。TVアンテナ、網戸、照明器具、カーテンレール、面格子は付きません。フラット35ご利用の場合における各証明書取得代金が別途必要になります。 | ||
| 問い合わせ先 | 東上住宅 株式会社 | 電話番号 | 049-250-5555 |
| 建築確認番号 | 第HPA-25-07311-1号 | ||
会員登録のメリット
①データ連携機能搭載
いつでも、どこでもPCやスマホ、タブレットなどで同じ状況で閲覧いただけます。
②物件比較機能
チェックした物件を様々な条件を並べて比較できますので絞り込みに便利です。
